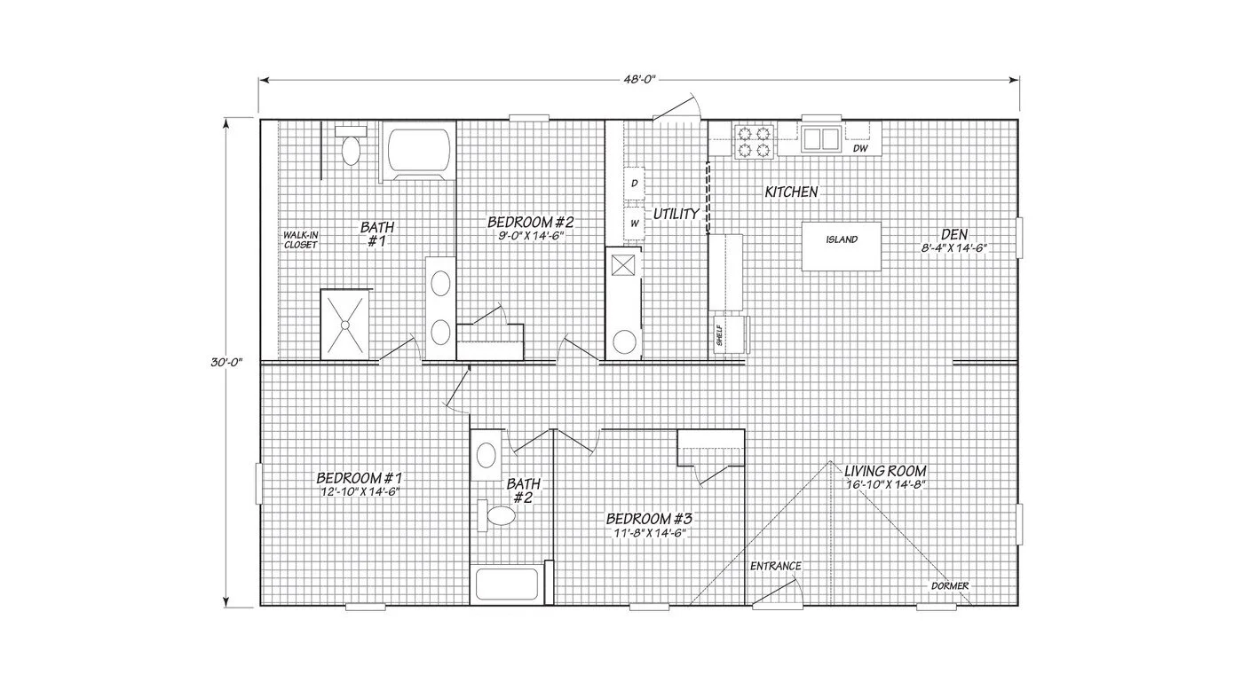
Phoenix #48 1440 SQ. FT | 3 BEDS | 2 BATHS interested?(828)-788-0052 or (336)-466-4102or fill out the following information. Name * First Name Last Name Email * Model Number * Phone * (###) ### #### Please provide further details regarding your inquiry so we can best assist you * Thank you!